项目名称 I 广东润和新材料惠州产业园
项目地址 I 广东省惠州市广东润和新材料科技有限公司惠州产业园
项目面积 I 2万㎡
主要材料 I 大理石纹岩板、云石纹瓷砖、防纹不锈钢、铝格栅、艺术漆

飞行,是一种超越自我的体验,让人感受到自由和无限可能;飞行,是一种信仰,让人相信自己可以超越自我,让人感受到自己的力量和坚定;飞行,是一种艺术,飞行员是艺术家,他们用飞机在天空中创造出一道道优美的弧度。


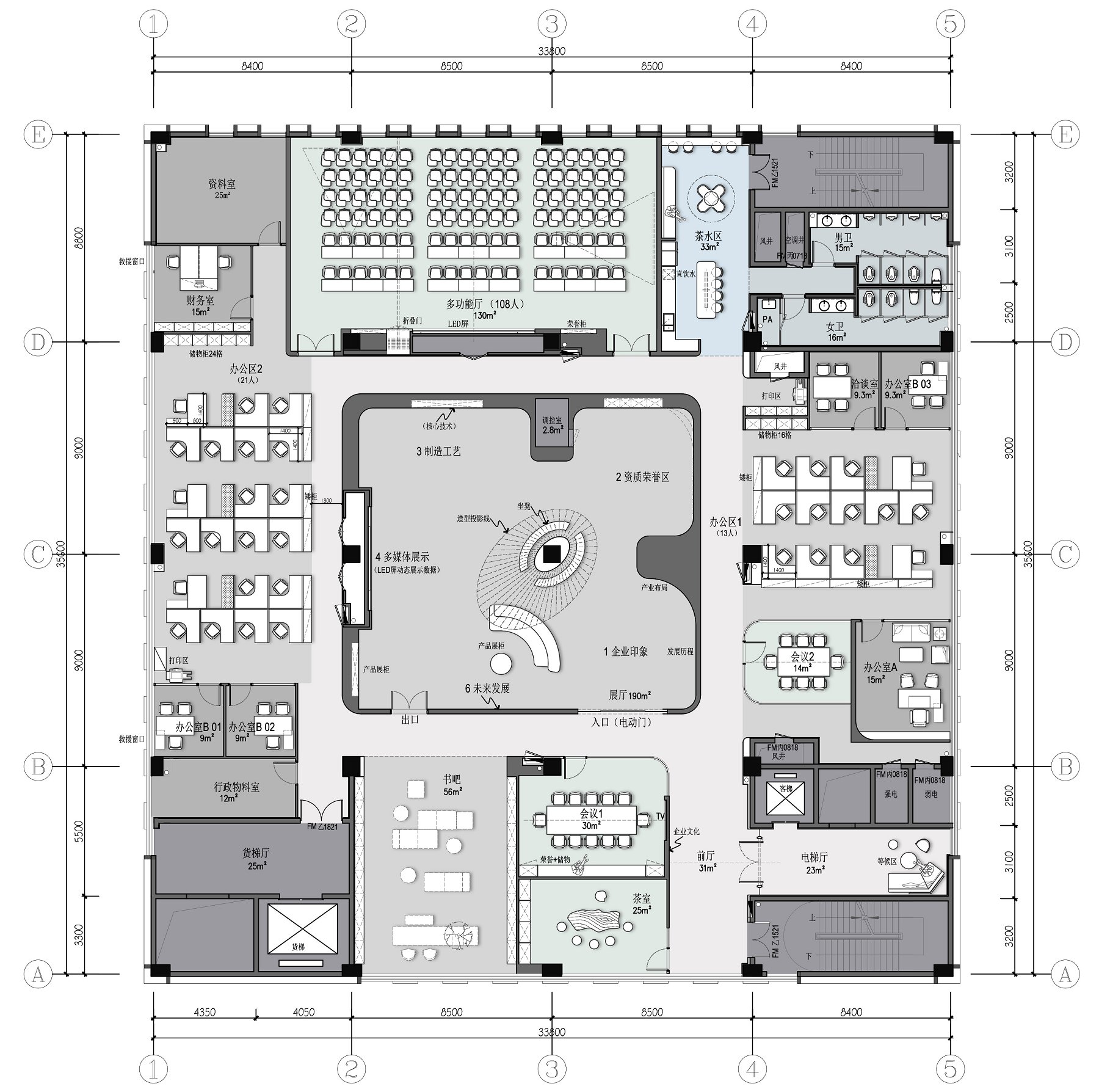
项目设计涵盖精装办公、实验室、洁净车间、化学品特殊车间、生产车间、立体仓库等园区所有室内装饰范围,设计面积广,空间种类多样,综合打造符合企业定位的现代产业园。
办公楼设计灵感源自企业从事飞机材料生产特性,取机翼、尾翼的轮廓弧形元素,用现代简洁的手法演变贯穿空间。
空间以白色为基调,企业蓝色为点缀,用静态的线条演绎灵妙的动感,时尚主义与未来主义一脉相承,解构现代国际化格调的魅力。
首层大堂主背景铝板弧形姿态从墙身延续至天花,预示飞机从航道启程,在空中划出一道道云迹。大堂墙身材料转进电梯厅,左右包夹之势,而低天花由里往外向上向外生长,在无声中渲泄张力与拼搏,激励空间生命力。


前厅,对称的弧形玻璃隔断中间设置企业文化墙,亚力克立体字排列组合形成世界地图,象征公司全球产业布局,潜移默化激励着每个人展望未来。


会议室,蓝天白云的烤漆玻璃上映衬着荣誉奖章,寓意着飞机承载企业生产成就翱翔在蓝天白云里。皮革软包卡座下暗藏储物柜,可存放瓶装水、激光笔等会议用品,便捷省心。


多功能厅,天花造型模拟机翼向上倾斜的形态,组合排布,形成空间秩序。


展厅,弧形流线型设计,天花造型模拟白云形态,配合音响、设备智能调光,赏心悦目,无不沉浸在“云上之城”里。弧形格栅灯条向上延展,渐变的蓝色灯光似断非断,形成超强视觉张力,吊挂各合作航空公司的飞机模型,螺旋而上,既是艺术,也能让来访客户共情。装饰材料以铝板、烤漆板为主,光泽度高,科技感强,也便于后期更换展示内容。


办公区内另设有茶歇、阅读区供员工休闲放松。岛台式的吧台,可供会议招待果切,或每周下午茶、月底员工生日会等福利,让办公如生活般自然。阅读区采用可拼合式沙发,阅读、休闲、洽谈的好去处,该区后期也可便于改为办公、健身区,天花轨道灯可根据新空间需求灵活调整,活动家具和可调灯光为更空间增加更多可能性。

