中建三局员工食堂
来源:汉唐装饰 发布日期:2022-11-04 16:18:23

项目名称:中建三局第一建设安装有限公司员工食堂装饰项目

项目地址:龙华区壹城中心花园1栋125、128及五区2楼25、28
项目面积:550平方

主要材质:地砖、铝方通、护墙板、布艺硬包、不锈钢

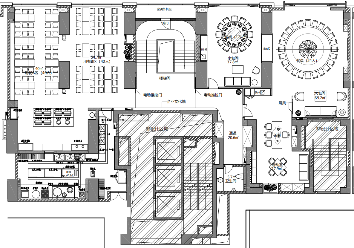
平面方案

楼梯间

      入口墙面采用积木形式做了一个文化墙,作为员工就餐区域,设计上做的休闲活泼一点,材质上也比较简单,地面白色地砖,吊顶用木纹铝方通,整体颜色比较温暖简洁。

VIP接待室

      整体色调采用暖色布艺硬包及木纹色护墙板,吊顶采用了软膜灯箱模拟天空自然光,让空间明亮柔和,圆餐桌吊顶采用圆顶呼应,拉高了层高,让吊顶层次更丰富,整体风格偏新中式风格。

员工就餐区
      色彩采用暖色调的护墙板,铝方通,局部做了石膏板吊顶,某些不好用的空间做了造景绿植点缀,美化空间。
相关案例