
风格这种东西啊~
有时候真不能具象到某个特有的名词,
如果加上去的话总显得有些生硬。但是有时候你要真从古埃及,罗马,文艺复兴,现代艺术论证一番,估计听众早就懵圈了吧,所以,还是得给他们来个浅显易懂的
"外号"

例如下面这个案例,我们姑且把它称为“简法和混搭”的结合体,
不描述经过多少轮的pk,最终独占鳌头,博得青睐。
业主对风格的需求不媚俗有底蕴,大框架下一次次的交流,
最终我们决定反其道而行之,咱们先去定好家具软装风格,随后根据家具倒推咱们的环境氛围。
接下来
请开始我们的手绘构思





从外形结构来叙述
我们的立面摒弃那些笨重的大线条,改用洛可可般的细线,
但不用那么媚俗的曲线,用简洁的直线去勾勒。顶面部分用折衷主义的手法,
进行重点的描饰,要的就是这种强烈的
反差

用色方面
亮白色+灰蓝色+天空灰的搭配
让空间呈现清新,自然的视觉效果,布置一件创意饰品,画饰或灯饰,能瞬间提升空间的艺术气质,变得新潮而有趣。

材质选择
铜金属的运用起到了提升奢华氛围的作用,版型的楼梯用金属来勾勒扶手,轻盈跳跃;
墙面的铜壁龛和蓝色水晶的灯具相互辉映;家具的铜部件更能体现奢华感。

结合以上的思路,我们的效果逐渐成形
•
•
•



楼梯采用爵士白大理石,栏杆用白色封闭式结构,扶手金色铜结构勾勒,辅以灯光,产生轻盈飘逸的感受

书房采用混搭风格,中式和简法的融合绝不突兀


老人的卧室自然简洁,用色柔和,无尖角硬物的设计给老人最大的安全舒适感
主人卧室高雅宁静,装饰面,家具,灯具,窗帘等和谐的表达着简法的风格
女儿房间非常open,透露着洛可可的小奢华


儿子房间现代风格的引入,更符合男孩气质定位
下沉式餐厅和西厨,用餐时享受户外沉降式花园的美景
一家人其乐融融的观影和交流,生活的美好不正是如此吗

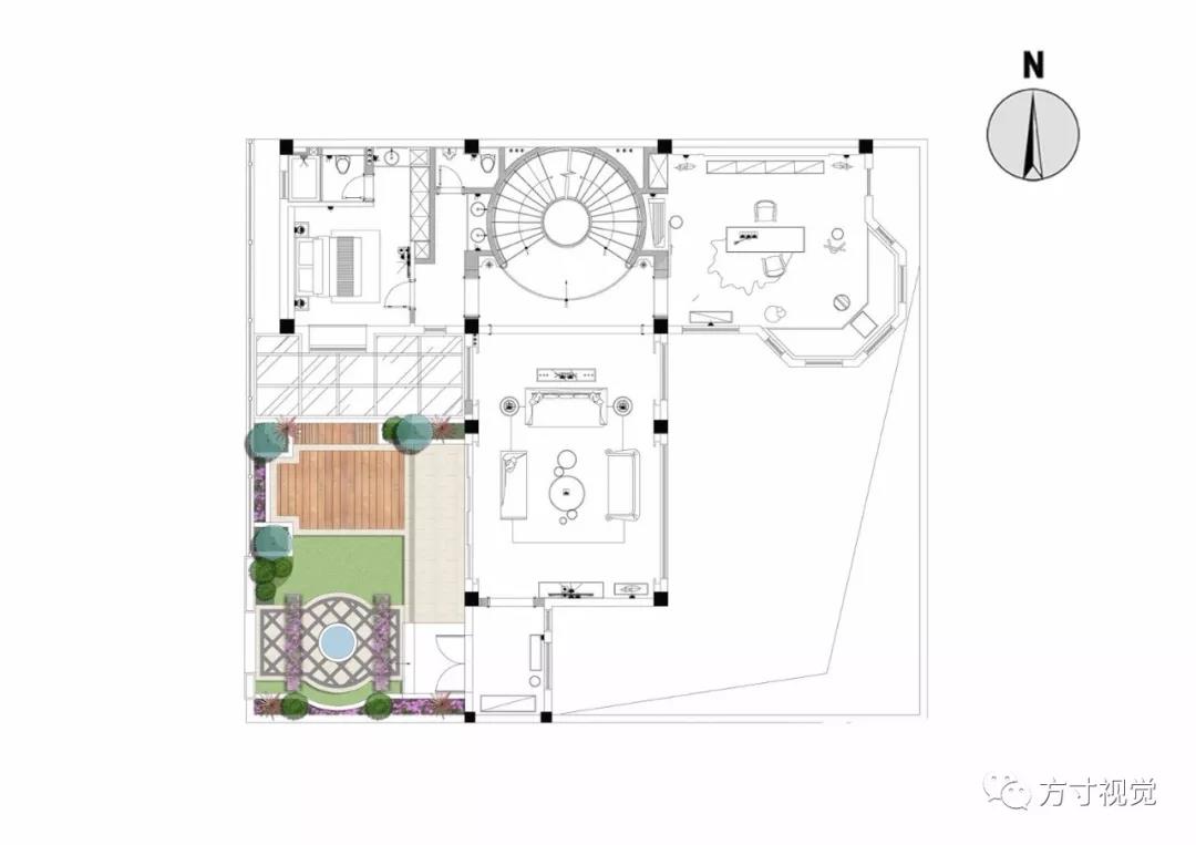
附:本案的最终确认平面



技术支持:凡亚园林


期待下一次的遇见